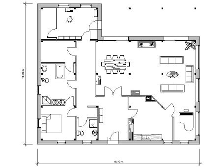
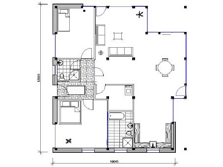
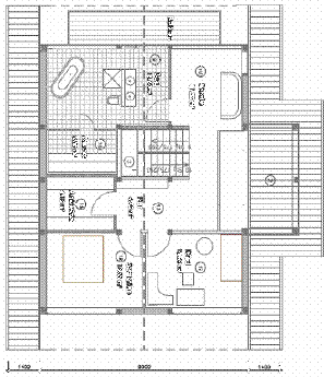
Grundrissbeispiele
Wir stellen Ihnen hier einige Grundrisse vor, die so oder ähnlich realisiert wurden. Sie sollen Ihnen nur als Anregung dienen, Ihre eigenen Ideen zu entwickeln.
FRH-9x9-F - Erdgeschoss
FRH-9x9-F - Obergeschoss
FRH-9x11-F - Erdgeschoss
FRH-9x11-F - Obergeschoss
FRH-11x12-B Bungalow 1
FRH-11x12-B Bungalow 2
